Thiết kế thi công biệt thự tân cổ điển mặt tiền 7m anh Hoan Củ Chi

🏡 Bố trí công năng căn biệt thự
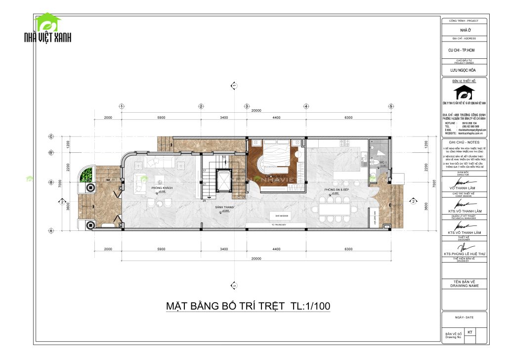
– Chủ đầu tư: Anh Hhóa
– Địa chỉ: Củ Chi – TP.HCM
– Diện tích xây dựng: 7x35m
– Quy mô: 1 trệt – 2 lầu – 1 tầng áp mái – 1 tầng mái

-
Tầng trệt: phòng khách, phòng bếp – bàn ăn, 1 phòng ngủ, WC chung, hồ cá tiểu cảnh
-
Lầu 1: 3 phòng ngủ (gồm 1 master), 3 WC riêng, ban công, sảnh thang thông tầng
-
Lầu 2: 2 phòng ngủ, phòng thờ, WC chung, ban công trước sau
-
Tầng áp mái: sân thượng lớn, phòng kho, không gian kỹ thuật
-
Tầng mái: sân thượng, tháp nước, năng lượng mặt trời

Tái hiện vẻ đẹp hoàng gia qua thiết kế biệt thự tân cổ điển

Trong thế giới kiến trúc hiện đại, những công trình biệt thự tân cổ điển luôn có sức hút đặc biệt nhờ vẻ đẹp trường tồn với thời gian. Căn biệt thự của anh Hoan là minh chứng cho sự kết hợp hoàn hảo giữa phong cách kiến trúc cổ điển sang trọng và tiện nghi sống hiện đại.

Không chỉ mang đến không gian sống đẳng cấp, ngôi nhà còn thể hiện gu thẩm mỹ tinh tế và cá tính riêng của gia chủ – người trân trọng vẻ đẹp bền vững, sâu sắc.

Tổng quan thiết kế: Tinh hoa cổ điển giữa lòng Củ Chi

Với mặt tiền rộng 7m, căn biệt thự tân cổ điển nổi bật bởi sự cân đối trong bố cục và những chi tiết phào chỉ tinh xảo. Mái mansard kiểu Pháp, cột trụ vững chãi và hệ lan can sắt mỹ thuật tạo nên tổng thể kiến trúc hài hòa, mạnh mẽ nhưng vẫn mềm mại.

Gam màu trắng – xám chủ đạo mang đến cảm giác thanh lịch, kết hợp hài hòa với không gian xanh xung quanh. Thiết kế cổng và sân vườn giúp nâng tầm vẻ đẹp tổng thể, đồng thời tạo sự riêng tư cần thiết.

Không gian sống hiện đại – tiện nghi – ấm cúng

Tầng trệt mở ra không gian sinh hoạt chính rộng rãi và thoáng đãng, với phòng khách kết nối liền mạch khu bếp và bàn ăn. Tại đây, các thành viên trong gia đình dễ dàng gắn kết và chia sẻ những khoảnh khắc ấm áp.
Lầu 1 là không gian nghỉ ngơi chính với phòng master lớn cùng phòng tắm riêng sang trọng, cùng 2 phòng ngủ tiện nghi. Tầng 2 là nơi lý tưởng để thờ cúng và tiếp tục bố trí thêm không gian nghỉ ngơi.
Tầng áp mái và sân thượng được thiết kế phục vụ nhu cầu giặt phơi, kho chứa đồ, trồng cây – tối ưu hóa diện tích nhưng vẫn giữ sự thoáng đãng và thư giãn.

Điểm nhấn làm nên dấu ấn biệt thự tân cổ điển

Từng chi tiết nội – ngoại thất đều được lựa chọn và thiết kế kỹ lưỡng bởi đội ngũ kiến trúc sư Nhà Việt Xanh. Từ đèn chùm pha lê, sàn gỗ xương cá, đến những chi tiết tường, trần… tất cả đều toát lên sự sang trọng và đẳng cấp.

Ánh sáng tự nhiên được tận dụng tối đa thông qua các cửa kính lớn, giếng trời và ban công – giúp không gian luôn ngập tràn năng lượng tích cực. Sự bố trí cây xanh đan xen hợp lý giúp điều hòa khí hậu và tăng giá trị thẩm mỹ cho toàn bộ công trình.

Đang tìm kiếm mẫu biệt thự tân cổ điển sang trọng ? liên hệ ngay với độ ngũ Nhà Việt Xanh để được
TƯ Vấn ngayBiệt thự tân cổ điển – không gian sống chuẩn mực và đầy cảm xúc

Công trình biệt thự tân cổ điển của anh Hoan không chỉ là một nơi ở, mà là một tuyên ngôn sống – nơi vẻ đẹp, công năng và cảm xúc giao thoa một cách hoàn hảo. Mỗi đường nét, mỗi không gian đều phản ánh sự đầu tư tâm huyết và gu thẩm mỹ chỉn chu.

Dành cho những ai trân trọng giá trị sống bền vững, yêu vẻ đẹp cổ điển và hướng tới sự khác biệt, đây chắc chắn là mẫu biệt thự đáng mơ ước.

























Đang tìm kiếm mẫu biệt thự tân cổ điển sang trọng ? liên hệ ngay với độ ngũ Nhà Việt Xanh để được
TƯ Vấn ngay

