Thiết Kế Mẫu Biệt Thự Tân Cổ Điển 2 Tầng Mặt Tiền 10m – Chị Đào Cần Đước Long An

Thông tin công trình:
-
Chủ đầu tư: Chị Đào
-
Địa chỉ: Cần Đước, Long An
-
Diện tích xây dựng: 10 × 18m
-
Công năng:
-
Tầng trệt: Phòng khách, khu vực bếp + bàn ăn, 1 WC chung, 1 phòng ngủ
-
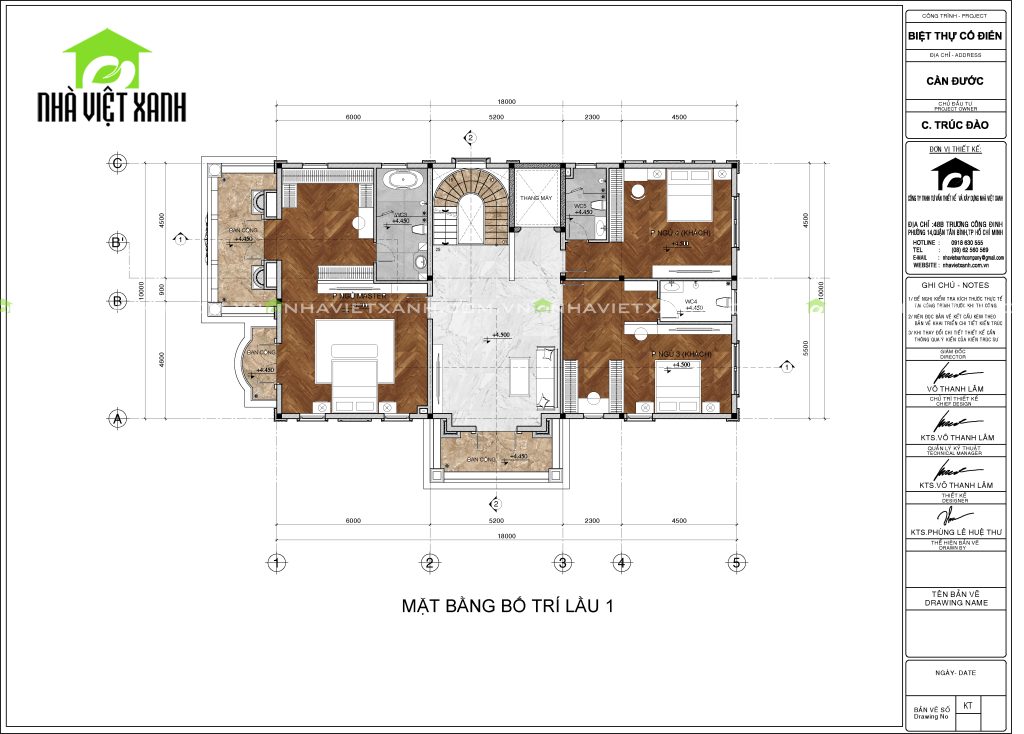
Tầng 1: 2 phòng ngủ có WC riêng, 1 phòng ngủ master, không gian sinh hoạt chung
-
Áp mái: 2 phòng ngủ khách, phòng thờ, phòng giải trí, 1 WC chung
-





Phong cách tân cổ điển: Tinh tế, sang trọng nhưng không phô trương

Với mặt tiền rộng 10m, mẫu biệt thự tân cổ điển của chị Đào tại Cần Đước nổi bật lên như một điểm nhấn giữa vùng đất trù phú Long An. Lấy cảm hứng từ kiến trúc châu Âu cổ kính, kết hợp cùng hơi thở hiện đại, công trình mang đến vẻ đẹp thanh thoát, kiêu sa nhưng vẫn gần gũi với văn hóa sống của người Việt.

Đây là mẫu biệt thự lý tưởng dành cho những gia đình yêu thích sự chỉn chu, tinh tế trong từng chi tiết, đồng thời đề cao công năng và sự tiện nghi trong sinh hoạt hằng ngày.

Biệt thự tân cổ điển – không gian sống lý tưởng cho gia đình nhiều thế hệ

Một điểm đặc biệt khiến mẫu biệt thự này ghi điểm chính là khả năng bố trí công năng linh hoạt, tối ưu cho gia đình đông thành viên. Tầng trệt được thiết kế mở, kết nối giữa phòng khách, bếp và bàn ăn, tạo sự liên kết sinh hoạt chung. Một phòng ngủ đặt tại đây phù hợp cho người lớn tuổi hoặc khách đến chơi ở lại.

Tầng 1 là không gian sinh hoạt chính với hai phòng ngủ khép kín và một phòng master rộng rãi – nơi nghỉ ngơi riêng tư, tiện nghi cho vợ chồng gia chủ. Khu vực sinh hoạt chung giúp kết nối các thành viên, là nơi trò chuyện, đọc sách, giải trí nhẹ nhàng sau ngày dài làm việc.

Trên tầng áp mái là “kho báu tiềm ẩn” với 2 phòng ngủ khách, phòng thờ trang nghiêm, không gian giải trí và một WC chung – đầy đủ tiện ích như một resort thu nhỏ ngay trong ngôi nhà của bạn.

📍 Bạn muốn sở hữu biệt thự đẹp như thế này?
👉 Gửi yêu cầu tư vấn miễn phí ngay cho đội ngũ kiến trúc sư Nhà Việt Xanh!
Chi tiết tinh xảo – linh hồn của biệt thự tân cổ điển

Điểm thu hút của mẫu biệt thự tân cổ điển này chính là cách xử lý mặt tiền đầy tinh tế: từ hệ cột trụ mạnh mẽ nâng đỡ mái hiên, đến các đường phào chỉ được đắp nổi vừa đủ tạo độ sâu, kết hợp lan can uốn cong nhẹ nhàng, tất cả hòa quyện trong sắc trắng kem sang trọng.
Mái ngói xanh ghi kiểu Mansard giúp tăng chiều cao cho công trình, đồng thời tạo nên vẻ ngoài uy nghi nhưng không hề nặng nề. Đây là lựa chọn phổ biến trong các mẫu biệt thự cao cấp, bởi nó mang tính biểu tượng cho quyền quý và gu thẩm mỹ cổ điển vượt thời gian.
Tối ưu công năng – sống thoải mái trong từng mét vuông
Dù diện tích chỉ 180m², nhưng nhờ cách chia mặt bằng khoa học, ngôi nhà không chỉ rộng về mặt cảm quan mà còn đầy đủ các không gian cần thiết cho cuộc sống hiện đại. Việc phân chia các khu vực chức năng theo tầng giúp đảm bảo sự riêng tư và thuận tiện cho từng thành viên trong gia đình.
Đặc biệt, phần áp mái không bị lãng phí như thường thấy mà được tận dụng tối đa, trở thành khu vực đa năng phục vụ cho nghỉ ngơi, thờ cúng và thư giãn.
Không gian sống đẳng cấp – nơi nâng tầm giá trị gia đình
Bên cạnh vẻ ngoài nổi bật, nội thất bên trong biệt thự cũng được thiết kế đồng điệu với phong cách tân cổ điển: sử dụng các gam màu trung tính sang trọng, kết hợp vật liệu gỗ, đá tự nhiên, ánh kim nhẹ để mang đến không gian sống vừa ấm cúng, vừa đẳng cấp.
Mỗi phòng ngủ đều có cửa sổ lớn đón ánh sáng tự nhiên, thiết kế trần cao và thông thoáng tạo cảm giác thư giãn tối đa. Những đường nét bo tròn mềm mại trên tay vịn, viền cửa, bàn ghế hay đèn chùm pha lê… khiến toàn bộ căn nhà như bước ra từ không gian hoàng gia châu Âu.
Lý do bạn nên chọn biệt thự tân cổ điển cho tổ ấm của mình
-
Đẹp trường tồn theo thời gian: Không lo lỗi mốt như các xu hướng thiết kế hiện đại.
-
Thể hiện đẳng cấp: Mỗi chi tiết đều mang dấu ấn thẩm mỹ tinh tế và quý phái.
-
Linh hoạt công năng: Dễ tùy biến phù hợp với quy mô gia đình và nhu cầu sinh hoạt.
-
Tối ưu giá trị sử dụng đất: Dù mặt tiền 10m, ngôi nhà vẫn có thể bố trí tới 6 phòng ngủ, không gian sinh hoạt và giải trí riêng biệt.
Nhà Việt Xanh – chuyên gia thiết kế thi công biệt thự tân cổ điển hàng đầu
Với kinh nghiệm thực hiện hàng trăm công trình biệt thự trên toàn quốc, Nhà Việt Xanh là đơn vị uy tín được nhiều gia chủ tin chọn khi muốn xây dựng tổ ấm mang phong cách tân cổ điển. Đội ngũ KTS giàu kinh nghiệm luôn đảm bảo hài hòa giữa yếu tố thẩm mỹ, công năng và phong thủy, mang đến giải pháp thiết kế “đo ni đóng giày” cho từng ngôi nhà.







































